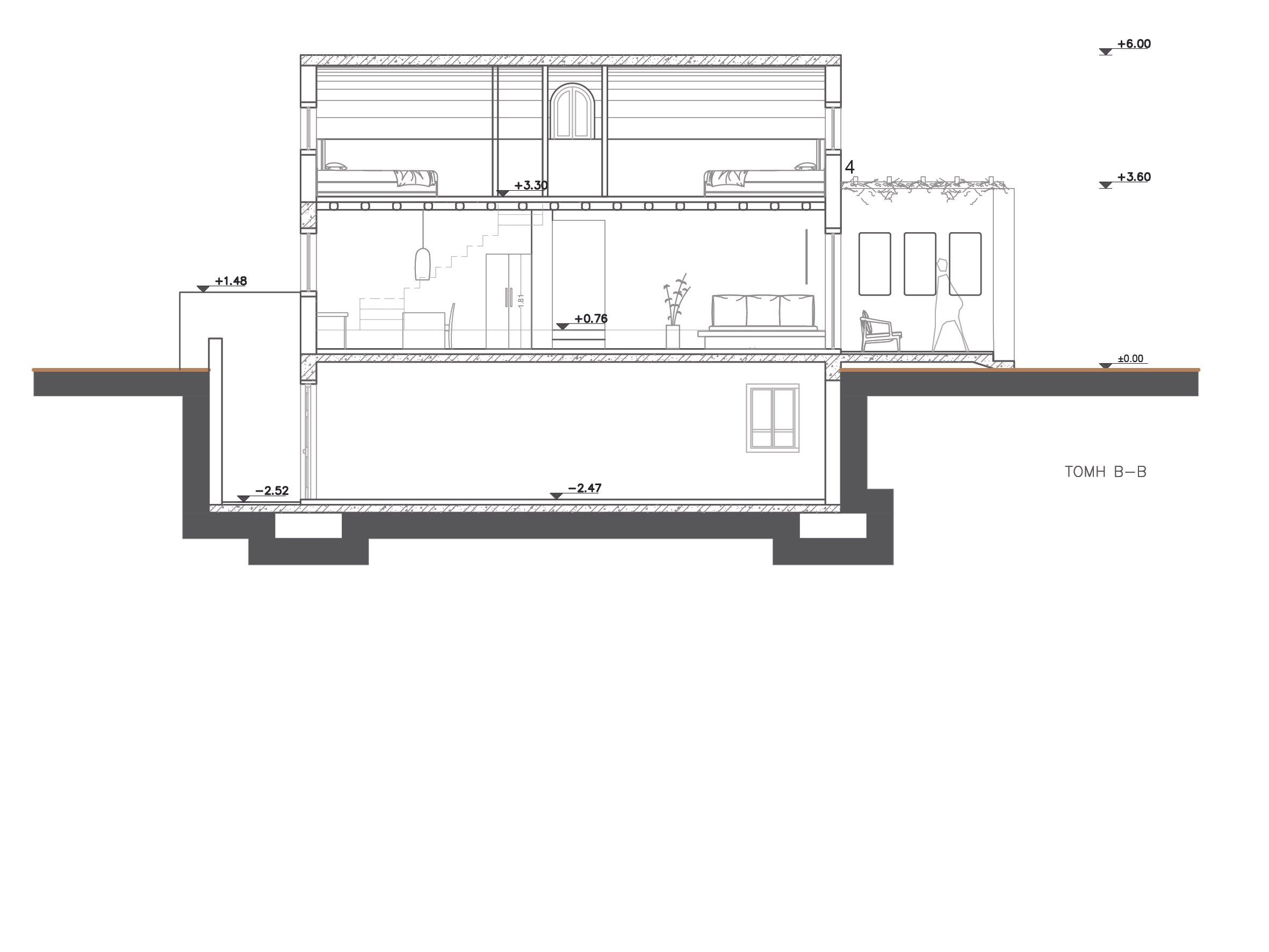
Monolithos Family House

Project

Residential design

Location

Monolithos, Santorini

Area

100 m2

Status

Under construction

Year

2023

A vacation home in Monolithos, Santorini, designed with a focus on Cycladic architecture, featuring vaulted ceilings, strong arches, and a minimalist approach. The design utilizes natural materials and incorporates earthy, bright tones that harmonize with the natural landscape while reflecting sunlight during hot summers. Subtle influences from Japanese architecture are present, with wood playing a central role in the interior spaces. The spatial organization emphasizes a harmonius transition between interior and exterior, with an open-plan layout that extends the living area to blend with the surrounding environment. Carefully considered rest areas are integrated for comfort throughout the day.

Previous
Previous

Leonidio Hill Apartments

Next
Next

Santorini Guest House